Description
Property Highlights:
Tenure: Freehold
Type: Medium Industry (Cluster, Semi-D, & Detached Factories)
Land Size: 13.66 Acres total development
Phase 1 Units: 32 units available
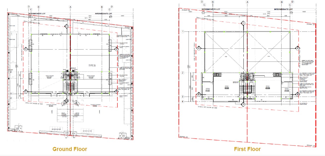
Modern Design: 1.5-storey layouts with professional corporate imaging and skylight integration for energy efficiency
High Specifications: * Ceiling Height: 8m production area for vertical storage
Power Supply: 150–200 Amp, 3-Phase
Floor Loading: 10kn/m² (Ground Floor)
Unbeatable Connectivity:
3 KM to Senawang Toll Plaza (Exit 220) / North-South Expressway
7 KM to LEKAS Highway
Near MVV 2.0 Parcel F (NS Semiconductor Valley)
Direct Access to Port Klang, KLIA, and Kuala Lumpur City Centre
Available Units (Phase 1):
Cluster Factory ($80’ \times 110’$): BU 5,013 sq ft | From RM2.4 mil
Semi-D Factory ($80’ \times 130’$): BU 5,298 – 5,798 sq ft | From RM2.52 mil
Large Semi-D ($100’ \times 180’$): BU 9,079 sq ft | From RM4.54 mil
Address
Open on Google Maps- Address: Senawang, Negeri Sembilan, Malaysia
- City: Seremban
- State/county: Negeri Sembilan
- Zip/Postal Code: 70450
Details
Updated on March 28, 2026 at 5:44 pm- Property ID CBD28118
- Price RM2,400,000
- Property Type Semi-D factory
- Property Status For Sale
Mortgage Calculator
- Down Payment
- Loan Amount
- Monthly Mortgage Payment


